The BLOK System
Our modular precast BLOK system redefines structural design with uncompromised flexibility.
BLOK Tech-Select
Gallery
Your configured BLOKs integrate seamlessly into standard wall construction.
Component Specification
Engineered Standards.
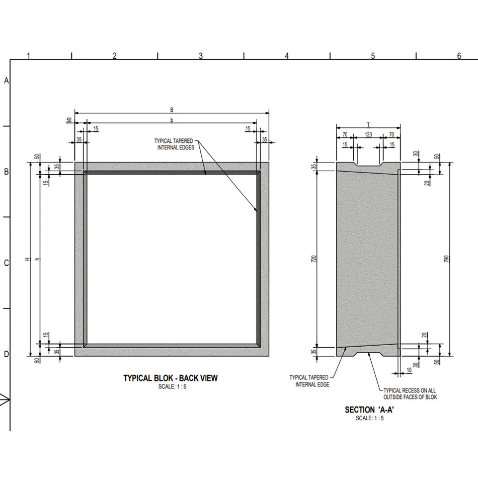
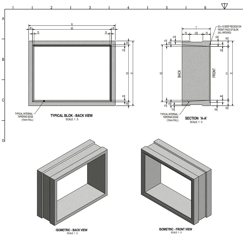
Standardized for structural alignment. Multiple depth configurations for brick-match precision.
Variable wall thickness specialist. METRIC and IMPERIAL specs with B, b1, b2, H, h1, h2, T dimensions.
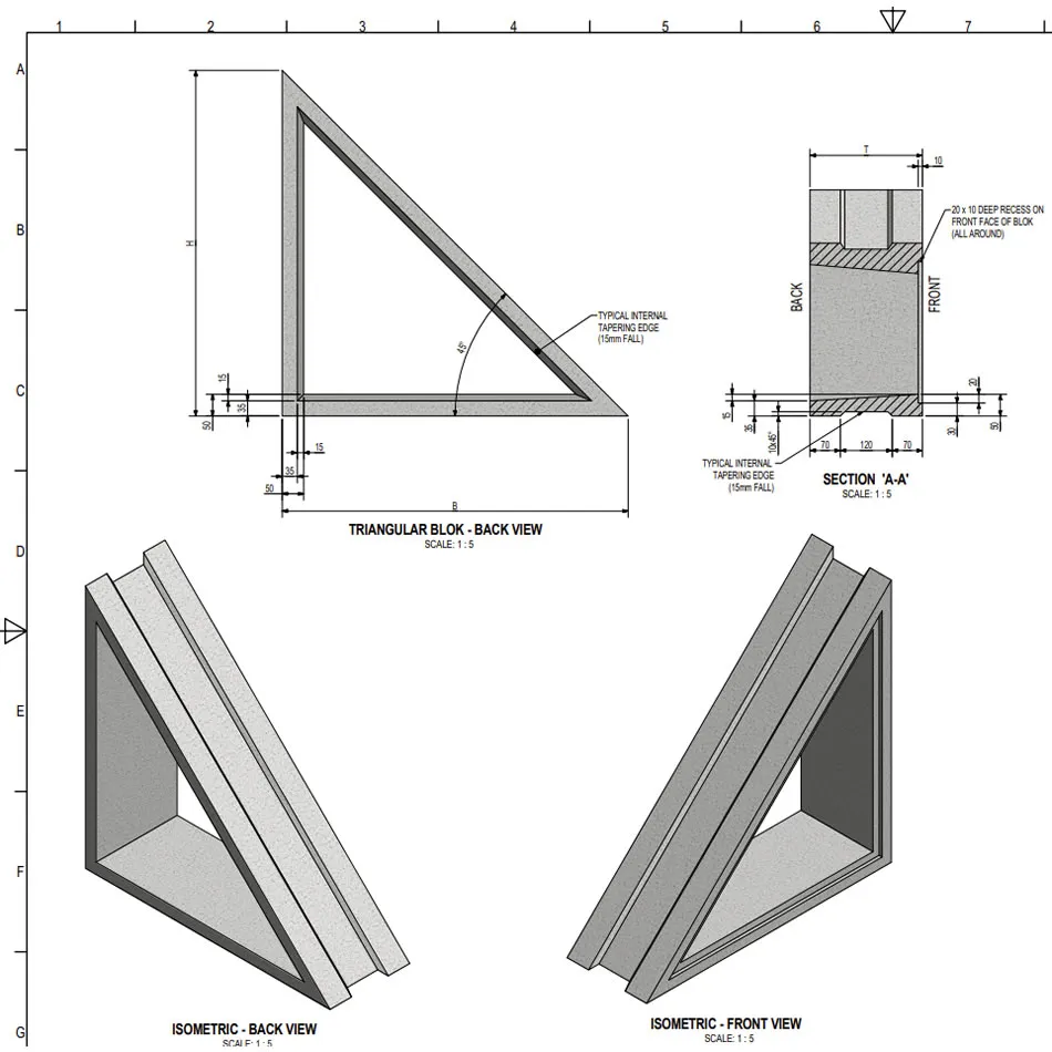
Geometric accents for architectural differentiation. Precision-cast for high-density resilience.
Geometric accents for architectural differentiation. Precision-cast for high-density resilience.
Geometric accents for architectural differentiation. Precision-cast for high-density resilience.
Semi-circular geometric accent. Precision-cast for architectural differentiation.
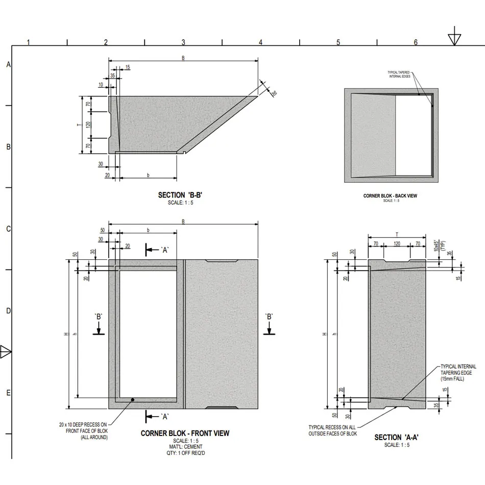
Edge-case engineering. Designed for structural continuity at the wall's most vulnerable points. Square Corner configuration.
System Integration
Our modular precast units are designed for seamless integration. Whether you are creating a standard residential facade or a complex industrial geometric pattern, the BLOK system adapts to popular brick sizes and wall thicknesses.




